Avaleht

Individuaalprojekt

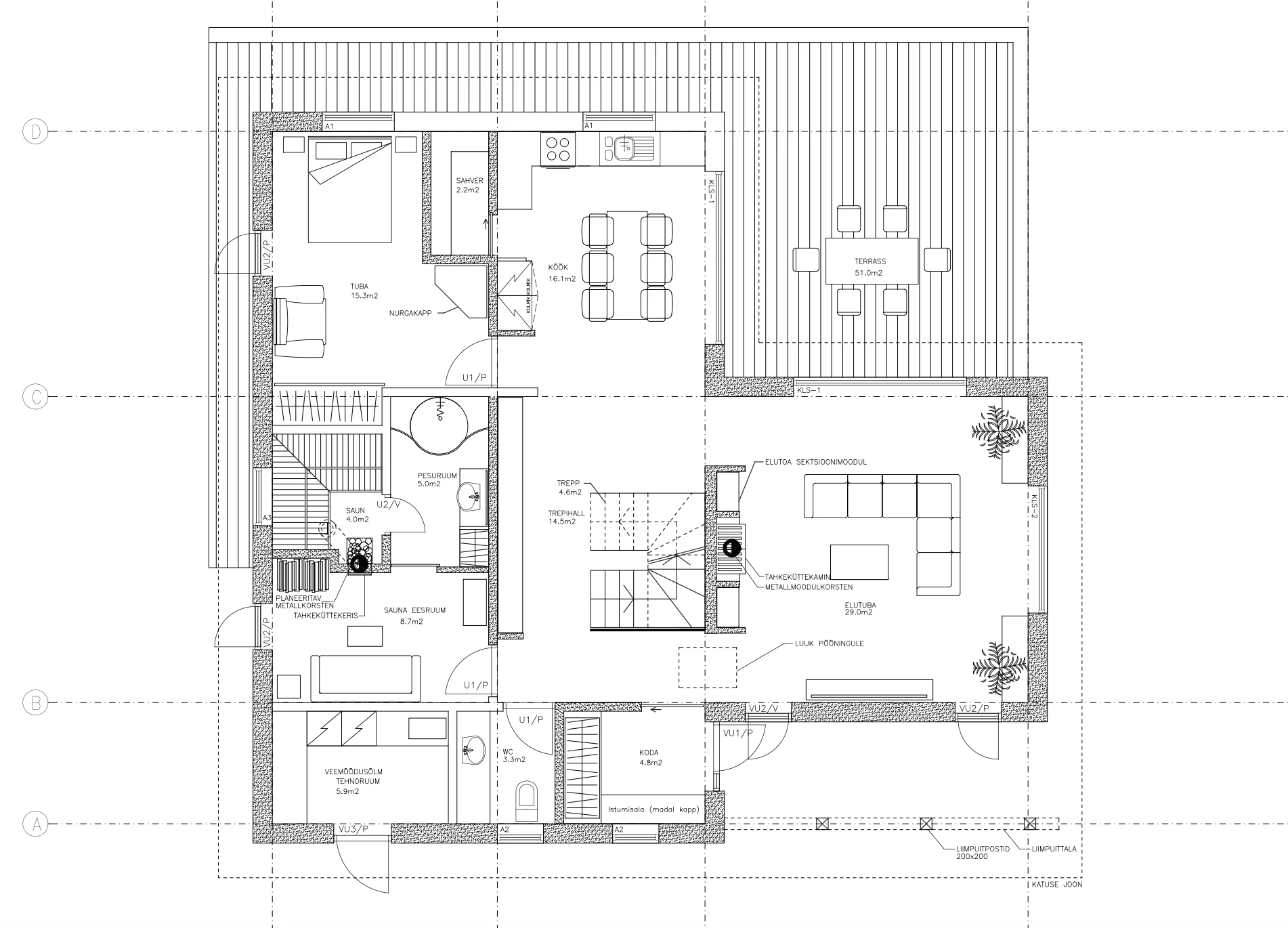
KLIENDILUGU / SANDOR

Maja projekti tegime ise.

Meile oli oluline, et maja oleks planeeritud nii, et terrassile paistaks võimalikult palju päevas päikest.

Samuti oli oluline, et majas sees oleks saun.

1 / 6
/ Galerii

Maja vaated

1 / 6
/ Maja

Ruumide suurused on piisavad.

Oleme värvilahendusega väga rahul.

Eriti meeldib maja sileda profiiliga kivikatus.

Teenused

Tooted

Ehitusest

Ehitusest